KHU ĐÔ THỊ MỚI BÍCH ĐỘNG, VIỆT YÊN, BẮC NINH
Khu đô thị Bích Động là tên gọi chung để chỉ một chuỗi các dự án bất động sản quy mô lớn tại thị trấn Bích Động, huyện Việt Yên, tỉnh Bắc Giang (nay là phường Việt Yên, tỉnh Bắc Ninh). Nằm ở trung tâm của thủ phủ công nghiệp lớn, khu vực Bích Động đang được chú trọng phát triển hạ tầng. Thị trường bất động sản Việt Yên, Bắc Ninh tăng trưởng mạnh nhờ làn sóng đầu tư FDI và sự bùng nổ các khu công nghiệp, kéo theo nhu cầu nhà ở, dịch vụ tại Bích Động ngày càng cao. Từ đó, nhiều dự án khu đô thị mới với quy mô lớn đã xuất dần hiện, phản ánh tiềm năng sinh lời và giá trị gia tăng bất động sản tại đây

Danh Mục Chính
ToggleI. Vị trí và kết nối khu vực Bích Động
1. Vị trí trung tâm chiến lược của huyện Việt Yên
Bích Động là thị trấn trung tâm hành chính, kinh tế và văn hóa của huyện Việt Yên, nằm ở phía Tây Nam tỉnh Bắc Giang. Từ Bích Động, chỉ mất:
– 10 phút để đến trung tâm TP. Bắc Giang,
– 45 phút đến trung tâm Thủ đô Hà Nội,
– 25 phút đến TP. Bắc Ninh.
Về địa giới, Bích Động tiếp giáp:
– Phía Bắc: xã Hồng Thái và thị trấn Nếnh,
– Phía Nam: xã Nghĩa Trung,
– Phía Đông: xã Tăng Tiến,
– Phía Tây: sông Cầu – ranh giới tự nhiên với tỉnh Bắc Ninh.
Với vị trí này, Bích Động trở thành “trung tâm kết nối” giữa Bắc Giang – Bắc Ninh – Hà Nội, đồng thời là đầu mối giao thương và phát triển đô thị quan trọng của vùng công nghiệp phía Nam tỉnh Bắc Giang.
2. Kết nối giao thông thuận tiện, hạ tầng hoàn thiện
Hệ thống hạ tầng giao thông của Bích Động được đầu tư đồng bộ và đang tiếp tục mở rộng, nổi bật gồm:
– Quốc lộ 37 chạy xuyên qua trung tâm thị trấn, kết nối trực tiếp với TP. Bắc Giang và Bắc Ninh.
– Quốc lộ 1A mới và cao tốc Hà Nội – Bắc Giang chỉ cách vài km, giúp rút ngắn thời gian di chuyển về Hà Nội còn khoảng 40–45 phút.
– Đường tỉnh 298, đường vành đai khu công nghiệp Quang Châu – Vân Trung, đường trục Bích Động – Nếnh đều được nâng cấp, mở rộng 4–6 làn xe.
– Gần ga Kép – Bắc Giang, ga Phố Nếnh và sân bay quốc tế Nội Bài (khoảng 50 phút di chuyển).
Bên cạnh đó, hạ tầng nội khu đô thị tại Bích Động đang được chỉnh trang mạnh mẽ: đường Hồ Công Dự nối dài, các tuyến đường Nguyễn Thế Nho, Lê Lợi, Nguyễn Văn Cừ… được mở rộng, kết nối xuyên suốt khu trung tâm hành chính, khu dân cư và các khu đô thị mới.
Nhờ hệ thống hạ tầng hoàn thiện, Bích Động sở hữu lợi thế kép: vừa là trung tâm hành chính của Việt Yên, vừa là điểm trung chuyển chiến lược giữa các khu công nghiệp lớn như Quang Châu, Vân Trung, Đình Trám, Song Khê – Nội Hoàng.
II. Tiềm năng phát triển của Bích Động, Việt Yên
1. Tăng trưởng mạnh nhờ làn sóng FDI và khu công nghiệp
Huyện Việt Yên hiện là điểm đến hấp dẫn hàng đầu của các tập đoàn công nghiệp quốc tế, với hàng loạt khu công nghiệp quy mô lớn:
– KCN Quang Châu (Foxconn, Luxshare, JA Solar…),
– KCN Vân Trung,
– KCN Đình Trám,
– KCN Song Khê – Nội Hoàng.
Sự hiện diện của hàng chục nghìn chuyên gia, kỹ sư và công nhân đã tạo nhu cầu thực tế về nhà ở, dịch vụ thương mại và hạ tầng xã hội, kéo theo thị trường bất động sản phát triển sôi động tại Bích Động.
2. Trung tâm hành chính – thương mại mới của khu vực
Chính quyền tỉnh Bắc Giang định hướng Bích Động trở thành đô thị loại IV trước năm 2030, là trung tâm đô thị, thương mại, dịch vụ của Việt Yên. Hàng loạt dự án đang được triển khai:
– Quảng trường trung tâm & Hồ điều hòa Bích Động,
– Trục giao thông Bích Động – Tăng Tiến – Quang Châu,
– Các khu đô thị quy mô lớn như TNR Stars Bích Động, Bích Động Lakeside, Việt Yên Riverside…
Đây là bước chuyển mình rõ nét, giúp Bích Động trở thành “điểm sáng” đô thị hóa phía Nam Bắc Giang.
3. Tiềm năng tăng giá và sinh lời cao
– Giá đất khu vực trung tâm Bích Động chỉ bằng 1/3 – 1/2 so với các khu vực lân cận như Từ Sơn (Bắc Ninh) hay Yên Phong, nhưng hạ tầng và tiềm năng phát triển tương đương.
– Khi tuyến đường Vành đai 4 Hà Nội, cao tốc Bắc Giang – Lạng Sơn mở rộng và quy hoạch mở rộng thị trấn Bích Động lên đô thị loại IV hoàn thành, giá trị bất động sản tại đây sẽ còn tăng mạnh theo chu kỳ 2025–2030.
Cùng với đó, nhu cầu nhà ở của chuyên gia và người lao động trong khu công nghiệp dự kiến tăng 15–20%/năm, mở ra cơ hội đầu tư hấp dẫn cho các sản phẩm đất nền, shophouse, chung cư và nhà ở xã hội.
Với vị trí chiến lược – hạ tầng kết nối hoàn chỉnh – làn sóng FDI bùng nổ – quy hoạch đô thị rõ ràng, Bích Động (Việt Yên) đang vươn lên trở thành trung tâm đô thị mới, đầu tàu phát triển của khu Nam Bắc Giang.
Đây là thời điểm “vàng” để các nhà đầu tư đón đầu xu hướng và khai thác tiềm năng bất động sản dài hạn tại khu vực này.
III. Một số dự án Bất Động Sản nổi bật tại Bích Động
1. Việt Yên Riverside
| Tên thương mại | Việt Yên Riverside |
| Tên pháp lý | Khu Đô Thị Mới Thị Trấn Bích Động |
| Vị trí | Tọa lạc trên mặt đường QL37, Bích Động, Phường Việt Yên, Tỉnh Bắc Ninh |
| Chủ đầu tư | Liên danh giữa TSG Việt Nam & Công Ty Cổ Phần Bất Động Sản Sài Đồng |
| Đơn vị phát triển | SGO Homes |
| Tổng thầu thi công | Tổng Công Ty Công Trình Viettel |
| Quy mô | Hơn 30ha |
| Sản phẩm | Cung cấp sản phẩm là bất động sản chuyển nhượng theo đồ án được duyệt gồm:
|
| Mật độ xây dựng | Tối đa 30% |
| Thời hạn sử dụng | Lâu dài |
| Số tầng được xây dựng | Liền kề tối đa 5 tầng, biệt thự tối đa 3 tầng |
| Pháp lý dự án | Đã hoàn thiện đầy đủ pháp lý: QĐ phê duyệt 1/500 ; QĐ bàn giao đất ; giấy phép xây dựng ; phê duyệt môi trường ; hoàn thành xong nghĩa vụ tiền thuế sử dụng đất… |
| Tiến độ thi công | Đang thi công được 95% |
| Thời hạn bàn giao | Quý 1 năm 2026 |
Sơ đồ phân lô 1/500 dự án Việt Yên Riverside
2. Bích Sơn Central Point
| Tên dự án | Bích Sơn Central Point |
| Địa chỉ | Tổ dân phố Thượng, phường Việt Yên, tỉnh Bắc Ninh |
| Chủ đầu tư | Công ty Cổ phần Phát triển xây dựng đô thị và Công nghiệp HLC |
| Phát triển dự án | Công ty Cổ phần Địa ốc SGO |
| Tổng diện tích | 5,25 ha |
| Tính chất | Cung cấp bất động sản chuyển nhượng theo đồ án quy hoạch được duyệt gồm: 173 lô đất ở liền kề, trong đó:
|
| Mật độ | Tối đa 24% |
| Diện tích phân lô | Trung bình từ 75, 80, 85, 90.5m2 mặt tiền 5m |
| Thời hạn sử dụng | Lâu dài |
| Số tầng được xây dựng | Tối đa 5 tầng |
| Tiến độ dự án | Đang thi công |
| Pháp lý | Phê duyệt QH 1/500, đã đền bù xong 100%, giấy phép xây dựng, đã nộp xong tiền thuế sử dụng đất |
Sơ đồ phân lô dự án Bích Sơn Central Point
3. Bích Động Lakeside
| Tên dự án | Bích Động Lakeside |
| Vị trí | Tổ dân phố Dục Quang, phường Việt Yên, tỉnh Bắc Giang, |
| Chủ đầu tư | Công Ty Cổ Phần Đầu Tư Xây Dựng An Bình Thăng Long |
| Quy mô dự án | ~15ha với hơn 300 lô đất nền + shophouse |
| Tính chất | đây là khu đô thị mới và các công trình chức năng ở, trung tâm thương mại – dịch vụ, có kiến trúc cảnh quan đẹp được đầu tư xây dựng hiện đại, đồng bộ hạ tầng kỹ thuật, hạ tầng xã hội. |
| Diện tích sản phẩm | Từ 85 – 100m2 |
| Thời hạn sử dụng đất | Sổ hồng lâu dài |
| Số tầng được phép xây dựng | 5 tầng |
| Tiến độ thi công | Đang thi công đạt 95% khối lượng |
| Thời hạn bàn giao | Quý 1 năm 2026 |
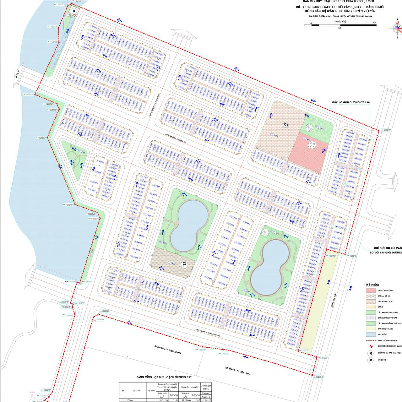
4. Dự Án Đông Bắc Bích Động
• Tên pháp lý: Khu Đô Thị Mới Đông Bắc Thị Trấn Bích Động, Việt Yên, Bắc Ninh
• Địa chỉ: Tỉnh lộ 298, Thị trấn Bích Động, Huyện Việt Yên, Tỉnh Bắc Giang
• CĐT: Công ty cổ phần xây dựng và dịch vụ thương mại Tuấn Quỳnh
• Đơn vị thi công: Công ty cổ phần đầu tư Thiên Ân
• Tứ vấn thiết kế: Công ty cổ phần tư vấn đầu tư xây dựng SAO MỘC
• Tư vấn giám sát: Ban quản lý đầu tư xây dựng huyện Việt Yên
• Tổng diện tích dự án: 15,35ha
• Sản phẩm: Chia làm hơn 400 lô liền kề + shophouse
• Thời hạn sử dụng: Lâu dài
• Số tầng được xây dựng: 5 tầng
• Tiến độ thi công: Đang thị công, dự kiến hoàn thành vào ngày 30/04/2022
• Pháp lý: Được phê duyệt QH 1/500 & giải phòng đền bù mặt bằng xong xuôi
5. Dự án Việt Yên Lakeside
– Tên thương mại: Việt Yên Lakeside City
– Vị trí: Quốc lộ 37, Thị trấn Bích Động, Huyện Việt Yên, Tỉnh Bắc Giang
– Chủ đầu tư: Công ty Cổ Phần Đầu Tư Xây Dựng An Bình Thăng Long
– Tổng diện tích: 13.48 ha
– Đất công cộng: 3.356 m2
– Đất nhà trẻ: 4.558 m2
– Đất cây xanh: 7.287 m2
– Đất ở mới: 51.190 m2
– Đất ở hiện trạng: 9.926 m2
– Đất giao thông, bãi đỗ xe: 58.389 m2
– Đất hạ tầng kỹ thuật: 100 m2
– Quy mô dự án: 503 lô đất (Shophouse, Nhà ở Biệt Thự, Nhà ở Liền Kề), trong đó:
+ Biệt thự: Số lượng 35 lô có diện tích 256m2 – 303m2
+ Liền kề: Số lượng 430 lô có diện tích 90m2 – 114m2
+ Shophouse: Số lượng 38 lô có diện tích 126m2 – 160m2
– Thời gian khởi công: Năm 2024
– Thời gian bàn giao dự kiến: Quý 3/2025
– Hình thức sở hữu: Sổ hồng lâu dài
ĐĂNG KÝ NHẬN THÔNG TIN DỰ ÁN



